Details
Little Kineton
Guide price £325,000 Freehold
Description
A WELL-PRESENTED MEWS STYLE MID-TERRACE PROPERTY FORMING PART OF AN ATTRACTIVE COURTYARD AND LOCATED IN A PRIVATE RESIDENTIAL ESTATE. EPC Band D
INTRODUCTION
½ mile from Kineton village centre
10 miles to Stratford-upon-Avon
11 miles to Warwick and Leamington Spa
4 miles to Junction 12 of the M40 motorway at Gaydon
A WELL-PRESENTED MEWS STYLE MID-TERRACE PROPERTY FORMING PART OF AN ATTRACTIVE COURTYARD AND LOCATED IN A PRIVATE RESIDENTIAL ESTATE
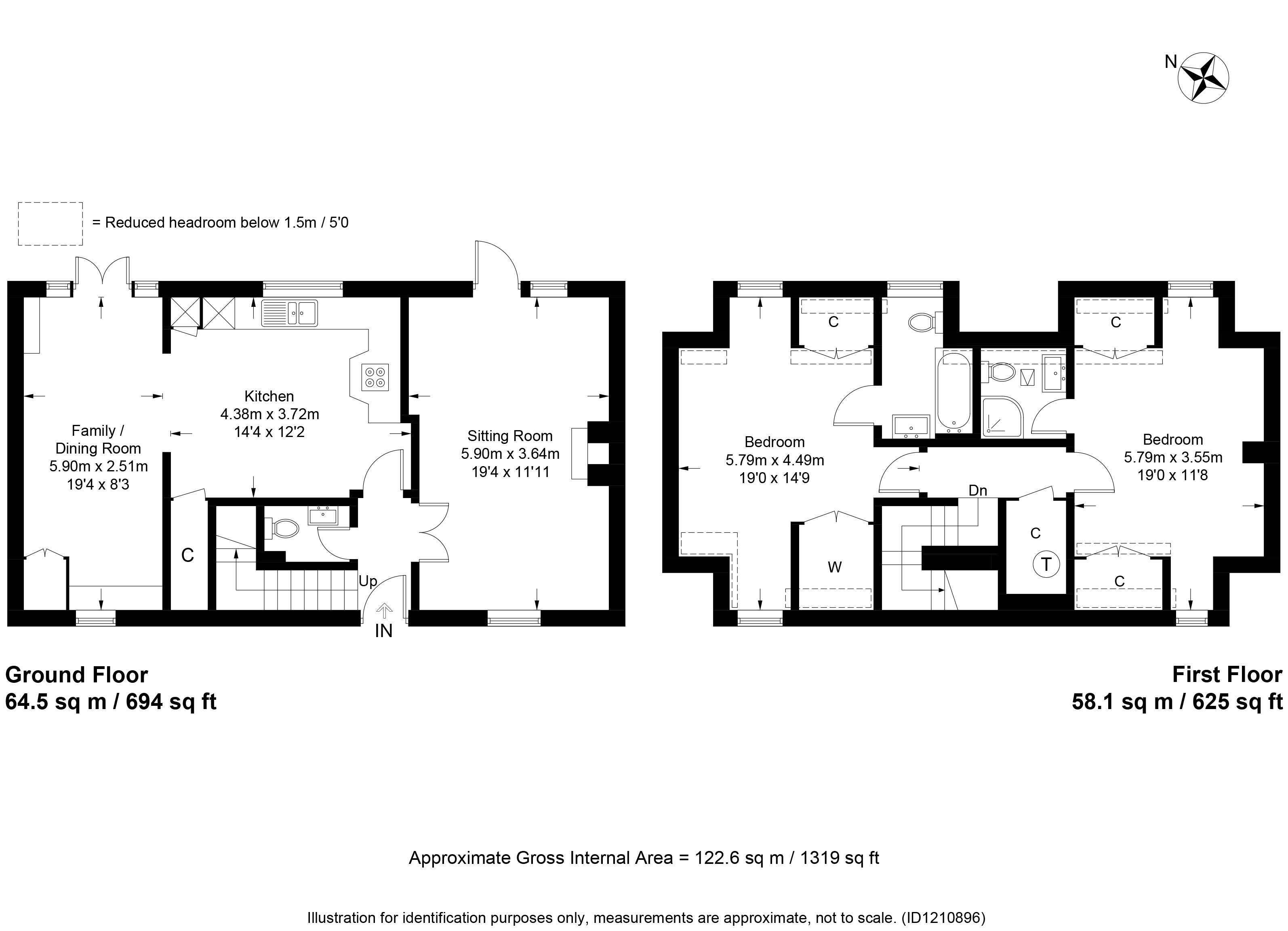
- Entrance Hall
- Guest WC
- Living Room
- Sitting Room
- Kitchen / Dining Room
- Two Bedrooms
- Ensuite Bathroom
- Ensuite Shower Room
- Low maintenance gardens
- Driveway
- EPC Rating D
LOCATION
Little Kineton lies approximately ½ mile to the South of Kineton, a popular well served village with a number of shops for daily requirements including post office, two general stores, bakers pharmacy, opticians, hairdressers, and veterinary practice. Also within the village; a Parish Church, Roman Catholic and Methodist Churches, two doctors' surgeries, public houses, sports club, primary and secondary schools.
The village enjoys a close, active community a diverse population of all ages, drawn to the village for its facilities, café, and restaurants. The surrounding countryside offers walking, cycling and riding. The Cotswold Hills lie to the South and nearby Stratford upon Avon, Banbury, Leamington Spa and Warwick offer a wide range of shopping, recreational, leisure facilities and supermarkets.
THE PROPERTY
Forming part of an attractive quadrant of similar mews style properties No.6 The Courtyard comprises a two-storey spacious, bright cottage and is understood to have formed part of the original stables to the Norton Grange Manor House. The Property presents to a good standard throughout with fitted kitchen, including a range of appliances, two spacious double bedrooms, both with ensuite facilities and an attractive double aspect Sitting Room with open fireplace. The property has the benefit of UPVC double glazing and electric heating throughout. Outside a gravel area opposite the rear elevation provides private parking and outside space. In addition all properties on the Norton Grange private estate benefit from the shared use of the private playing fields a short walk from the property.
ACCOMMODATION
GROUND FLOOR
Entrance Hall with engineered wood floor and staircase rising to first floor. Guest WC with close coupled WC, wall mounted wash hand basin and extractor fan. Sitting Room double aspect to front and rear of the property with glazed double doors opening to rear and open fireplace with marble surround and matching hearth. Kitchen Dining Room fitted with a range of matching painted units to two walls under wood effect worktop. Inset four ring electric hob with extractor hood over. Inset ceramic 1½ bowl single drainer sink with mixer tap, integrated dishwasher, fridge freezer and double electric oven. Space and plumbing for washing machine. Terracotta tiled floor and outlook to the rear of the property. Walk-in cupboard with shelving, electric light and power supply. Living Room double aspect to front and rear of the property with glazed doors opening to the rear, window seat with storage under, range of shelving with cupboards to side and engineered wood floor.
FIRST FLOOR
Landing with access to loft space and walk-in airing cupboard with electric light and shelving. Bedroom One double aspect to front and rear of the property with built-in wardrobe cupboard and separate eaves storage cupboard opposite. Ensuite Bathroom with panelled bath including shower attachment over with glazed shower screen, close coupled WC, wash hand basin set to vanity unit, obscured glazed window and towel radiator. Bedroom Two double aspect to front and rear of the property with built-in storage cupboards either side. Ensuite Shower Room enclosed shower cubicle with glazed sliding doors, close coupled WC and wash hand basin set to vanity unit, tiled floor, towel radiator and roof light.
OUTSIDE
To the front of the property a communal courtyard is landscaped with shingle and pot plants. Pathway leads to front door with electric light. To the rear of the property opposite the access road No.6 has allocated parking and outside space, including bin stores.
GENERAL INFORMATION Tenure
Freehold with Vacant Possession. NB:- Norton Grange annual maintenance charge of c£200. The Courtyard annual maintenance fee c£50
Services
Mains water, drainage and electricity are connected.
Electric central heating.
Ofcom Broadband availability: Superfast.
Ofcom predicted external Mobile coverage Likely: O2, 3, EE, Vodaphone.
Council Tax
Payable to Stratford District Council, Listed in Band D
Energy Performance Certificate
Current: 62 Potential: 82 Band: D
Fixtures and Fittings
All items mentioned in these sale particulars are included in the sale. All other items are excluded.
Material information:
No known property issues including: location, planned works on property, complex issues, rights or restrictions, rights of way or easements, risk of flood, planning permissions, property adaptations, neighbour issues, vendor overseas, significant events.
Anti Money Laundering checks (AML)
Agents are required by law to conduct anti-money laundering checks on all those selling or buying a property. Our office will outsource the initial checks to a partner supplier who will contact you once you have had an offer accepted on a property you wish to buy. The cost of these checks will be advised to you by the agent. These charges cover the cost of obtaining relevant data and any manual checks and monitoring which might be required. This fee will need to be paid by the purchaser in advance of issuing a memorandum of sale.
Directions CV35 0DP
From the village centre South along Bridge Street and continue into Little Kineton. The entrance to Norton Grange will be found on the right hand side. The entrance to The Courtyard will be found on the left hand side set back from the road and though an archway
What3Words: ///irrigate.brownish.dove
IMPORTANT NOTICE
These particulars have been prepared in good faith and are for guidance only. They are intended to give a fair description of the property, but do not constitute part of an offer or form any part of a contract. The photographs show only certain parts and aspects as at the time they were taken. We have not carried out a survey on the property, nor have we tested the services, appliances or any specific fittings. Any areas, floor plans, site plans, measurements or distances we have referred to are given as a guide only and are not precise
Viewing
Please contact us on 01926 640 498 if you wish to arrange a viewing appointment for this property, or require further information.
Energy Performance Certificate
Click here to view the Energy Efficiency Rating and Environmental Impact Rating for this property.
Disclaimer
Colebrook Seccombes endeavour to maintain accurate depictions of properties in Virtual Tours, Floor Plans and descriptions, however, these are intended only as a guide and purchasers must satisfy themselves by personal inspection.
A WELL-PRESENTED MEWS STYLE MID-TERRACE PROPERTY FORMING PART OF AN ATTRACTIVE COURTYARD AND LOCATED IN A PRIVATE RESIDENTIAL ESTATE. EPC Band D
INTRODUCTION
½ mile from Kineton village centre
10 miles to Stratford-upon-Avon
11 miles to Warwick and Leamington Spa
4 miles to Junction 12 of the M40 motorway at Gaydon
A WELL-PRESENTED MEWS STYLE MID-TERRACE PROPERTY FORMING PART OF AN ATTRACTIVE COURTYARD AND LOCATED IN A PRIVATE RESIDENTIAL ESTATE
- Entrance Hall
- Guest WC
- Living Room
- Sitting Room
- Kitchen / Dining Room
- Two Bedrooms
- Ensuite Bathroom
- Ensuite Shower Room
- Low maintenance gardens
- Driveway
- EPC Rating D
LOCATION
Little Kineton lies approximately ½ mile to the South of Kineton, a popular well served village with a number of shops for daily requirements including post office, two general stores, bakers pharmacy, opticians, hairdressers, and veterinary practice. Also within the village; a Parish Church, Roman Catholic and Methodist Churches, two doctors' surgeries, public houses, sports club, primary and secondary schools.
The village enjoys a close, active community a diverse population of all ages, drawn to the village for its facilities, café, and restaurants. The surrounding countryside offers walking, cycling and riding. The Cotswold Hills lie to the South and nearby Stratford upon Avon, Banbury, Leamington Spa and Warwick offer a wide range of shopping, recreational, leisure facilities and supermarkets.
THE PROPERTY
Forming part of an attractive quadrant of similar mews style properties No.6 The Courtyard comprises a two-storey spacious, bright cottage and is understood to have formed part of the original stables to the Norton Grange Manor House. The Property presents to a good standard throughout with fitted kitchen, including a range of appliances, two spacious double bedrooms, both with ensuite facilities and an attractive double aspect Sitting Room with open fireplace. The property has the benefit of UPVC double glazing and electric heating throughout. Outside a gravel area opposite the rear elevation provides private parking and outside space. In addition all properties on the Norton Grange private estate benefit from the shared use of the private playing fields a short walk from the property.
ACCOMMODATION
GROUND FLOOR
Entrance Hall with engineered wood floor and staircase rising to first floor. Guest WC with close coupled WC, wall mounted wash hand basin and extractor fan. Sitting Room double aspect to front and rear of the property with glazed double doors opening to rear and open fireplace with marble surround and matching hearth. Kitchen Dining Room fitted with a range of matching painted units to two walls under wood effect worktop. Inset four ring electric hob with extractor hood over. Inset ceramic 1½ bowl single drainer sink with mixer tap, integrated dishwasher, fridge freezer and double electric oven. Space and plumbing for washing machine. Terracotta tiled floor and outlook to the rear of the property. Walk-in cupboard with shelving, electric light and power supply. Living Room double aspect to front and rear of the property with glazed doors opening to the rear, window seat with storage under, range of shelving with cupboards to side and engineered wood floor.
FIRST FLOOR
Landing with access to loft space and walk-in airing cupboard with electric light and shelving. Bedroom One double aspect to front and rear of the property with built-in wardrobe cupboard and separate eaves storage cupboard opposite. Ensuite Bathroom with panelled bath including shower attachment over with glazed shower screen, close coupled WC, wash hand basin set to vanity unit, obscured glazed window and towel radiator. Bedroom Two double aspect to front and rear of the property with built-in storage cupboards either side. Ensuite Shower Room enclosed shower cubicle with glazed sliding doors, close coupled WC and wash hand basin set to vanity unit, tiled floor, towel radiator and roof light.
OUTSIDE
To the front of the property a communal courtyard is landscaped with shingle and pot plants. Pathway leads to front door with electric light. To the rear of the property opposite the access road No.6 has allocated parking and outside space, including bin stores.
GENERAL INFORMATION Tenure
Freehold with Vacant Possession. NB:- Norton Grange annual maintenance charge of c£200. The Courtyard annual maintenance fee c£50
Services
Mains water, drainage and electricity are connected.
Electric central heating.
Ofcom Broadband availability: Superfast.
Ofcom predicted external Mobile coverage Likely: O2, 3, EE, Vodaphone.
Council Tax
Payable to Stratford District Council, Listed in Band D
Energy Performance Certificate
Current: 62 Potential: 82 Band: D
Fixtures and Fittings
All items mentioned in these sale particulars are included in the sale. All other items are excluded.
Material information:
No known property issues including: location, planned works on property, complex issues, rights or restrictions, rights of way or easements, risk of flood, planning permissions, property adaptations, neighbour issues, vendor overseas, significant events.
Anti Money Laundering checks (AML)
Agents are required by law to conduct anti-money laundering checks on all those selling or buying a property. Our office will outsource the initial checks to a partner supplier who will contact you once you have had an offer accepted on a property you wish to buy. The cost of these checks will be advised to you by the agent. These charges cover the cost of obtaining relevant data and any manual checks and monitoring which might be required. This fee will need to be paid by the purchaser in advance of issuing a memorandum of sale.
Directions CV35 0DP
From the village centre South along Bridge Street and continue into Little Kineton. The entrance to Norton Grange will be found on the right hand side. The entrance to The Courtyard will be found on the left hand side set back from the road and though an archway
What3Words: ///irrigate.brownish.dove
IMPORTANT NOTICE
These particulars have been prepared in good faith and are for guidance only. They are intended to give a fair description of the property, but do not constitute part of an offer or form any part of a contract. The photographs show only certain parts and aspects as at the time they were taken. We have not carried out a survey on the property, nor have we tested the services, appliances or any specific fittings. Any areas, floor plans, site plans, measurements or distances we have referred to are given as a guide only and are not precise
Viewing
Please contact us on 01926 640 498 if you wish to arrange a viewing appointment for this property, or require further information.
Energy Performance Certificate
Click here to view the Energy Efficiency Rating and Environmental Impact Rating for this property.
Disclaimer
Colebrook Seccombes endeavour to maintain accurate depictions of properties in Virtual Tours, Floor Plans and descriptions, however, these are intended only as a guide and purchasers must satisfy themselves by personal inspection.
Share
