Details
Little Kineton
Guide price £525,000 Freehold
(Sold Subject To Contract)
Description
AN ATTRACTIVE STONE FRONTED PROPERTY PRESENTED TO AN EXCELLENT STANDARD CONSIDERED IDEAL FOR FAMILIES OR DOWNSIZERS WITH OUTLOOK OVER THE VILLAGE GREEN. EPC Band E
INTRODUCTION
MANESTY COTTAGE
11 miles to Stratford-upon-Avon, Banbury, Warwick and Leamington Spa
3½ miles to Junction 12 of the M40 motorway at Gaydon
AN ATTRACTIVE STONE FRONTED PROPERTY PRESENTED TO AN EXCELLENT STANDARD CONSIDERED IDEAL FOR FAMILIES OR DOWNSIZERS WITH OUTLOOK OVER THE VILLAGE GREEN
- Entrance Hall
- Guest WC
- Sitting Room
- Garden Room
- Kitchen Dinng Room
- Utility Room
- Four Bedrooms
- Bathroom
- Ensuite Shower Room
- Study Office
- Garage
- Gardens to front & rear
- EPC Rating E
LOCATION
Little Kineton lies approximately ½ mile to the South of Kineton, a popular well served village with a number of shops for daily requirements including post office, general stores, bakers, pharmacy and butchers. Also within the village; a Parish Church, Roman Catholic and Methodist Churches, doctors' surgery, two public houses, sports club, primary and secondary schools.
The village enjoys a close, active community with families, professionals, retirement and second home owners, drawn to the village with its facilities, café's, and restaurants. The surrounding countryside offers walking, cycling and riding. The Cotswold Hills lie to the South and nearby Stratford upon Avon, Banbury, Leamington Spa and Warwick offer a wide range of shopping facilities and supermarkets.
THE PROPERTY
Manesty Cottage is understood to have been constructed circa 1990 and forms one of four attractive stone faced individual properties fronting onto the large open village green. Lying to the South of Kineton village, the property is within a short walking distance of all the village facilities.
The property has been presented to an excellent standard by the current owners, who during their term of ownership have undertaken improvement and alteration works including replacement en-suite, opening the kitchen through to the dining room and conversion of one of the garages into an excellent home office or studio. The property offers balanced living and bedroom accommodation, ideal as a family house or those relocating to be closer to all the village facilities, with features including exposed woodwork, solid fuel stove, double glazed cottage style windows and a enclosed cottage style garden to the rear which enjoys a sheltered Southerly aspect.
ACCOMMODATION
GROUND FLOOR
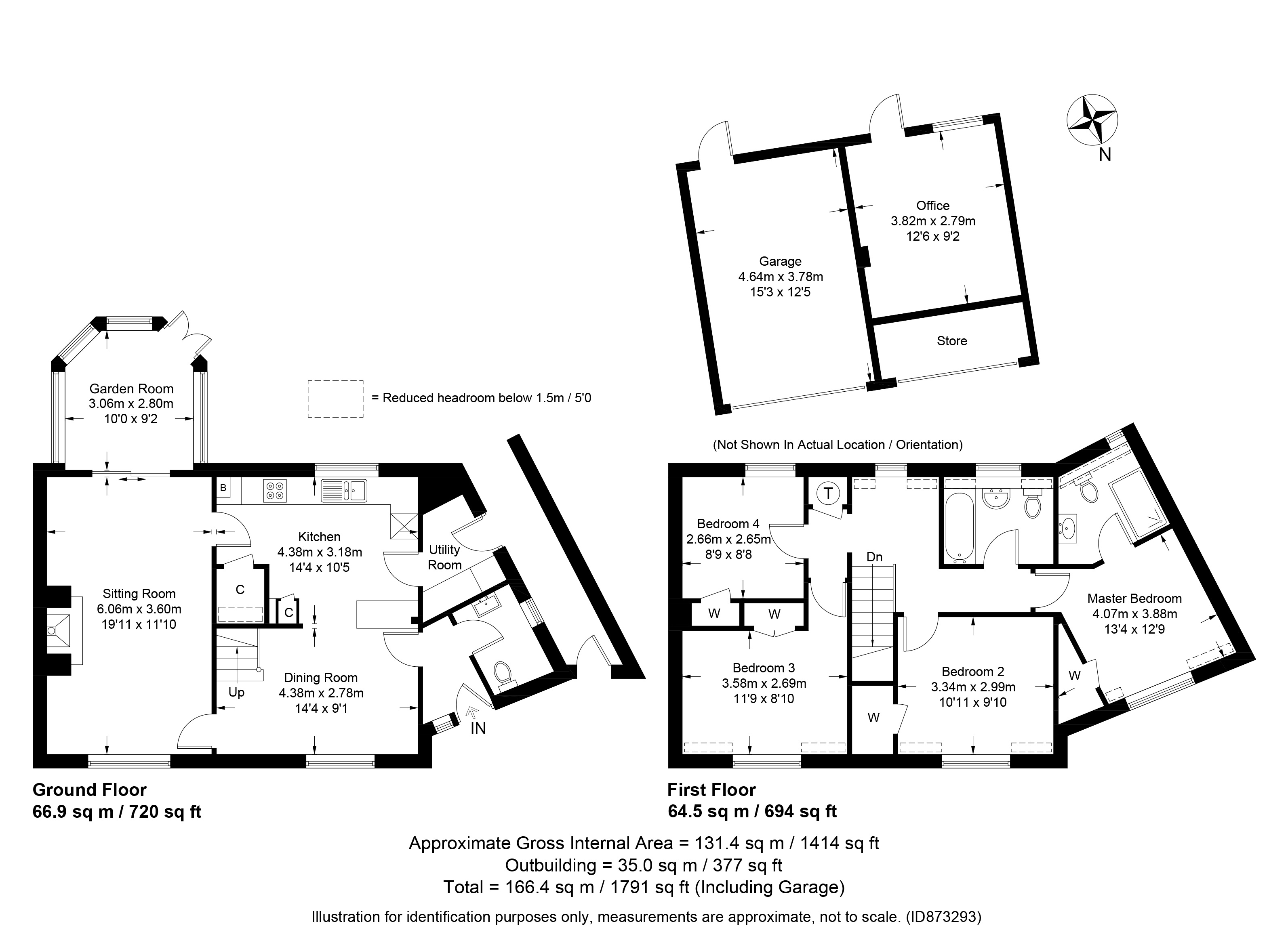
Entrance Hall with tiled floor, exposed beams and obscured glazed front door with matching window to side. Guest Cloakroom close coupled WC, tiled floor, wash hand basin, obscured glazed window towel radiator. Dining Room with outlook to the front, wood effect Karndean flooring, exposed beams to ceiling, open plan to kitchen. Sitting Room double aspect to front and rear. Karndean flooring and feature fireplace with floor standing solid fuel stove on slate hearth. Sliding patio doors to Garden Room exposed Hornton stone wall and double doors to rear garden, tiled floor. Kitchen fitted with a range of matching solid wood painted units to two walls under a granite effect L-shaped worktop. Inset stainless steel sink. storage cupboards and drawers under, four ring electric hob with extractor hood over, integrated dishwasher, and built-in double electric oven. Range of matching wall cupboards over. Integrated fridge and separate freezer under. Terracotta tiled floor and breakfast bar opening to Dining Room. Utility Room fitted with a single worktop, with space and plumbing for washing machine under, storage cupboard with matching cupboards over. Tiled floor with door to side passage.
FIRST FLOOR
Landing with outlook to the rear, airing cupboard with hot water cylinder, access to loft space. Bedroom One is a bright and spacious room with outlook to the front. Built-in wardrobe with hanging rail. Ensuite Shower Room with a walk-in shower, close coupled WC, wash hand basin set to vanity unit with storage drawers under, part tiled walls, tiled floor and obscured glazed window to rear. Bedroom Two outlook to the front and built-in double wardrobe. Bedroom Three outlook to the front and built-in wardrobe. Bedroom Four outlook to the rear and built-in wardrobe. Bathroom with a white three-piece suite, comprising panel bath with mixer tap and shower attachment and glazed shower screen, wash hand basin set to vanity unit with cupboards under, close coupled WC, towel radiator, part tiled walls and obscured glazed window to rear.
OUTSIDE
To the front a landscaped garden is laid to lawn with low-level Hornton stone wall to boundary. Passageway to side to rear garden. An enclosed south facing garden with paved patio adjoining rear of the property and lawn the length of the garden with ornamental flowerbeds, bushes and trees to borders. Studio/Office with stable door and window to front wood effect flooring electric light power supply. Single Garage with up and over door to front and personal door to rear. Electric light and power supply.
GENERAL INFORMATION
Tenure
Freehold with Vacant Possession.
Services
Mains water, drainage and electricity are understood to be connected to the property. Central heating is provided by an oil-fired boiler in the Kitchen.
Council Tax
Payable to Stratford District Council.
Listed in Band E
Energy Performance Certificate
Current: 51 Potential: 77 Band: E
Fixtures and Fittings
All items mentioned in these sale particulars are included in the sale. All other items are expressly excluded.
Money Laundering Regulation & Proceeds of Crime Act
Agents are required by law to conduct anti-money laundering checks on all those selling or buying a property. Our office will outsource the initial checks to a partner supplier who will contact you once you have had an offer accepted on a property. The cost of these checks will be advised to you by the agent. These charges cover the cost of obtaining relevant data, checks and monitoring which might be required. This fee will need to be paid by purchaser/s in advance of issuing a memorandum of sale
Directions CV35 0DJ
From Kineton, follow the road into Little Kineton and continue towards Butlers Marston where property will be on the left hand side over looking the village green.
What3Words: ///weds.exotic.sprayed
IMPORTANT NOTICE
These particulars have been prepared in good faith and are for guidance only. They are intended to give a fair description of the property, but do not constitute part of an offer or form any part of a contract. The photographs show only certain parts and aspects as at the time they were taken. We have not carried out a survey on the property, nor have we tested the services, appliances or any specific fittings. Any areas, floor plans, site plans, measurements or distances we have referred to are given as a guide only and are not precise.
Viewing
Please contact us on 01926 640 498 if you wish to arrange a viewing appointment for this property, or require further information.
Energy Performance Certificate
Click here to view the Energy Efficiency Rating and Environmental Impact Rating for this property.
Disclaimer
Colebrook Seccombes endeavour to maintain accurate depictions of properties in Virtual Tours, Floor Plans and descriptions, however, these are intended only as a guide and purchasers must satisfy themselves by personal inspection.
AN ATTRACTIVE STONE FRONTED PROPERTY PRESENTED TO AN EXCELLENT STANDARD CONSIDERED IDEAL FOR FAMILIES OR DOWNSIZERS WITH OUTLOOK OVER THE VILLAGE GREEN. EPC Band E
INTRODUCTION
MANESTY COTTAGE
11 miles to Stratford-upon-Avon, Banbury, Warwick and Leamington Spa
3½ miles to Junction 12 of the M40 motorway at Gaydon
AN ATTRACTIVE STONE FRONTED PROPERTY PRESENTED TO AN EXCELLENT STANDARD CONSIDERED IDEAL FOR FAMILIES OR DOWNSIZERS WITH OUTLOOK OVER THE VILLAGE GREEN
- Entrance Hall
- Guest WC
- Sitting Room
- Garden Room
- Kitchen Dinng Room
- Utility Room
- Four Bedrooms
- Bathroom
- Ensuite Shower Room
- Study Office
- Garage
- Gardens to front & rear
- EPC Rating E
LOCATION
Little Kineton lies approximately ½ mile to the South of Kineton, a popular well served village with a number of shops for daily requirements including post office, general stores, bakers, pharmacy and butchers. Also within the village; a Parish Church, Roman Catholic and Methodist Churches, doctors' surgery, two public houses, sports club, primary and secondary schools.
The village enjoys a close, active community with families, professionals, retirement and second home owners, drawn to the village with its facilities, café's, and restaurants. The surrounding countryside offers walking, cycling and riding. The Cotswold Hills lie to the South and nearby Stratford upon Avon, Banbury, Leamington Spa and Warwick offer a wide range of shopping facilities and supermarkets.
THE PROPERTY
Manesty Cottage is understood to have been constructed circa 1990 and forms one of four attractive stone faced individual properties fronting onto the large open village green. Lying to the South of Kineton village, the property is within a short walking distance of all the village facilities.
The property has been presented to an excellent standard by the current owners, who during their term of ownership have undertaken improvement and alteration works including replacement en-suite, opening the kitchen through to the dining room and conversion of one of the garages into an excellent home office or studio. The property offers balanced living and bedroom accommodation, ideal as a family house or those relocating to be closer to all the village facilities, with features including exposed woodwork, solid fuel stove, double glazed cottage style windows and a enclosed cottage style garden to the rear which enjoys a sheltered Southerly aspect.
ACCOMMODATION
GROUND FLOOR
Entrance Hall with tiled floor, exposed beams and obscured glazed front door with matching window to side. Guest Cloakroom close coupled WC, tiled floor, wash hand basin, obscured glazed window towel radiator. Dining Room with outlook to the front, wood effect Karndean flooring, exposed beams to ceiling, open plan to kitchen. Sitting Room double aspect to front and rear. Karndean flooring and feature fireplace with floor standing solid fuel stove on slate hearth. Sliding patio doors to Garden Room exposed Hornton stone wall and double doors to rear garden, tiled floor. Kitchen fitted with a range of matching solid wood painted units to two walls under a granite effect L-shaped worktop. Inset stainless steel sink. storage cupboards and drawers under, four ring electric hob with extractor hood over, integrated dishwasher, and built-in double electric oven. Range of matching wall cupboards over. Integrated fridge and separate freezer under. Terracotta tiled floor and breakfast bar opening to Dining Room. Utility Room fitted with a single worktop, with space and plumbing for washing machine under, storage cupboard with matching cupboards over. Tiled floor with door to side passage.
FIRST FLOOR
Landing with outlook to the rear, airing cupboard with hot water cylinder, access to loft space. Bedroom One is a bright and spacious room with outlook to the front. Built-in wardrobe with hanging rail. Ensuite Shower Room with a walk-in shower, close coupled WC, wash hand basin set to vanity unit with storage drawers under, part tiled walls, tiled floor and obscured glazed window to rear. Bedroom Two outlook to the front and built-in double wardrobe. Bedroom Three outlook to the front and built-in wardrobe. Bedroom Four outlook to the rear and built-in wardrobe. Bathroom with a white three-piece suite, comprising panel bath with mixer tap and shower attachment and glazed shower screen, wash hand basin set to vanity unit with cupboards under, close coupled WC, towel radiator, part tiled walls and obscured glazed window to rear.
OUTSIDE
To the front a landscaped garden is laid to lawn with low-level Hornton stone wall to boundary. Passageway to side to rear garden. An enclosed south facing garden with paved patio adjoining rear of the property and lawn the length of the garden with ornamental flowerbeds, bushes and trees to borders. Studio/Office with stable door and window to front wood effect flooring electric light power supply. Single Garage with up and over door to front and personal door to rear. Electric light and power supply.
GENERAL INFORMATION
Tenure
Freehold with Vacant Possession.
Services
Mains water, drainage and electricity are understood to be connected to the property. Central heating is provided by an oil-fired boiler in the Kitchen.
Council Tax
Payable to Stratford District Council.
Listed in Band E
Energy Performance Certificate
Current: 51 Potential: 77 Band: E
Fixtures and Fittings
All items mentioned in these sale particulars are included in the sale. All other items are expressly excluded.
Money Laundering Regulation & Proceeds of Crime Act
Agents are required by law to conduct anti-money laundering checks on all those selling or buying a property. Our office will outsource the initial checks to a partner supplier who will contact you once you have had an offer accepted on a property. The cost of these checks will be advised to you by the agent. These charges cover the cost of obtaining relevant data, checks and monitoring which might be required. This fee will need to be paid by purchaser/s in advance of issuing a memorandum of sale
Directions CV35 0DJ
From Kineton, follow the road into Little Kineton and continue towards Butlers Marston where property will be on the left hand side over looking the village green.
What3Words: ///weds.exotic.sprayed
IMPORTANT NOTICE
These particulars have been prepared in good faith and are for guidance only. They are intended to give a fair description of the property, but do not constitute part of an offer or form any part of a contract. The photographs show only certain parts and aspects as at the time they were taken. We have not carried out a survey on the property, nor have we tested the services, appliances or any specific fittings. Any areas, floor plans, site plans, measurements or distances we have referred to are given as a guide only and are not precise.
Viewing
Please contact us on 01926 640 498 if you wish to arrange a viewing appointment for this property, or require further information.
Energy Performance Certificate
Click here to view the Energy Efficiency Rating and Environmental Impact Rating for this property.
Disclaimer
Colebrook Seccombes endeavour to maintain accurate depictions of properties in Virtual Tours, Floor Plans and descriptions, however, these are intended only as a guide and purchasers must satisfy themselves by personal inspection.
Share
